運動館
特點
主題創意豐富
特色主題造型,營造沉浸體驗
空間靈活組合
按需設計布局,適配不同場地
玩法豐富益智
多樣玩法結合,促進智力發展
描述
Description
童年之家擅長將建筑建構理念應用于不同尺度,通過幾何構型、色彩美學、象征元素等復合表現手法,構建激發想象力與探索欲的玩樂空間。 我們突破傳統設備堆砌模式,以場景化設計重構商業空間價值,優化人流動線與空間效率,滿足商場、文旅等多元場景需求,提升品牌辨識度與市場競爭力。
項目洽談階段
Project negotiation phase
現場踏勘
實地考察場地空間結構、出入口位置、承重條件、水電布局等,確保符合淘氣堡建設標準。
初步溝通
了解客戶場地條件(如面積、層高、消防要求)、目標客群(年齡分布、區域消費水平)、預算及運營需求。
項目規劃階段
Project planning phase
概念設計
主題定位
根據前期調研結果,確定樂園的主題方向,如主題IP、海洋、冒險、星際等,設計IP形象及故事線。
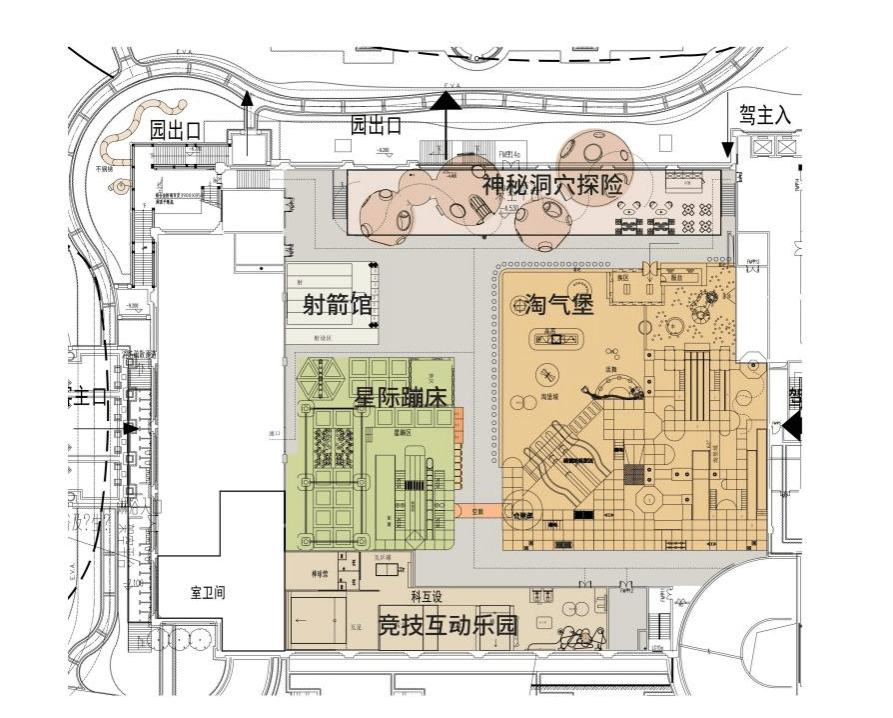
功能分區
根據目標客戶群體和樂園主題,合理規劃樂園功能分區,例如:淘氣堡區、攀爬區、角色扮演區、運動區、競技區、家長休息區等。
空間利用
充分利用場地空間,設計多層結構、立體游樂設施等,提高空間利用率。
動線規劃
設計單向循環動線,避免人流對沖,確保緊急疏散通道暢通。
方案設計
設備選型
根據年齡(如0-3歲、3-6歲、6-12歲)設計適配設備,結合安全性、趣味性、耐用性定制設備
布局優化
根據場地現狀和客戶需求,明確框架式或主題式設計,優化設備布局,確保安全間距。
配套設計
包含軟包造型設計、主題裝飾設計、防滑地墊系統、節能照明體系等模塊。
標識系統
設置醒目安全提示(如身高限制、家長陪同標識)及卡通主題導覽圖。
深化方案設計
Deepening scheme design
3D效果圖
對重要節點進行效果圖設計,例如主題場景、標志性設備等,直觀展示設計效果。
產品解析
對樂園設備的功能、玩法、安全性能等進行詳細解析,明確設備適用的年齡區間。
設備細節圖
對樂園設備進行細節設計,包括造型、尺寸、材質、顏色等,并考慮設備的安裝和維護。
工程設計階段
Engineering design phase
施工圖設計
根據深化后的方案,進行施工圖設計,包括場地隔斷圖、設備安裝圖、電路布線圖等。
編制施工圖文件
編制施工圖文件,包括施工圖紙、施工說明、工程量清單等。
圖紙審核
對施工圖進行審核,確保圖紙的準確性和可操作性。
設備生產
Equipment production
環保安全
采用食品級EPE棉、無甲醛膠水、阻燃布料。
耐用易清潔
表面使用防水防污涂層,減少維護成本。
定制化裁剪
激光切割確保軟包造型精準,縫紉加固接縫。
安全測試
設備需通過沖擊測試、承重測試(如蹦床網面承重≥200kg)。
設備安裝工程
Equipment installation project
游樂設備安裝
根據工程設計的安裝圖紙和技術要求,進行游樂設備的安裝和調試。
水電安裝
安裝游樂園內的給排水系統、供電系統、照明系統等,滿足游樂園的用水用電需求。
現場服務
配合施工單位進行現場施工,解決施工過程中出現的問題。
竣工驗收
參與工程竣工驗收,確保工程質量符合設計要求。
后期服務階段
Late service phase
安全支持
委派專業員工到現場協助各項開園的準備工作,為平安開園、順利開園保駕護航。
技術支持
提供詳細的產品說明書、使用手冊等資料,并對園區人員進行產品培訓。
運營指導
為客戶提供運營指導,包括活動策劃、營銷推廣等。
售后服務
全方位售后服務保障,隨時隨地提供專業的技術咨詢及優質高效的售后服務。