新園落地
特點
一園一品特色
立足于特色課程,打造差異化、個性化園所環境
美學啟蒙教育
選擇適合兒童的設計語言,將設計隱藏在教育背后
自然與童趣融合
在自然互動中建立生命感知與科學思維
描述
Description
童年之家堅持“教育與環境并重”,以“蹲下看世界”的設計視角,立足于特色課程體系和現代美學,為每所幼兒園塑造專屬的園所特色。 我們遵循兒童發展規律,響應托幼一體化趨勢,打造專業與溫度并存的教育空間,讓每個孩子都能在充滿生命力的環境中自然成長、自由探索。
項目洽談階段
Project negotiation phase
初步溝通
與園方深入溝通,了解辦園理念、目標、規模、預算等。
現場踏勘
實地考察園所環境,現場情況評估,分析周邊環境,協助園方確定功能分區、裝修風格、設備配置等。
項目規劃階段
Project planning phase
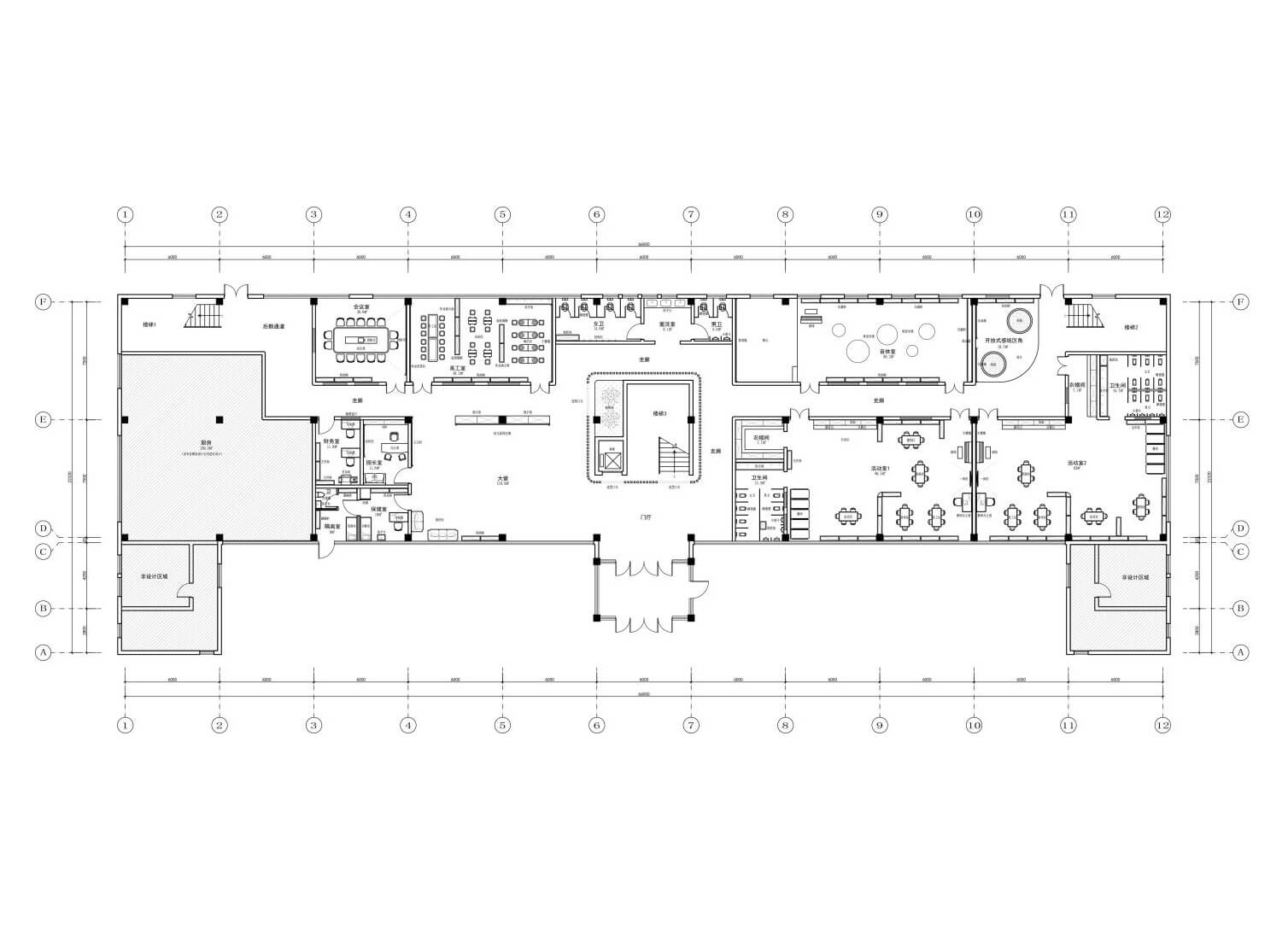
初步設計
功能分區
根據園所需求,劃分活動室、功能室、行政空間、服務管理用房、廚房等功能區域,并標注面積和位置。
流線設計
規劃合理的動線,確保幼兒、教師、后勤人員的流線互不干擾,并符合安全規范。
空間尺度
根據《托兒所、幼兒園建筑設計規范》設計適宜的空間尺度,營造舒適、安全的環境。
采光通風
考慮自然采光和通風,確保室內光線充足、空氣流通。
概念設計階段
設計主題
確定幼兒園的設計主題,如“文化特色”、“森林樂園”、“科技未來”等,并圍繞主題進行空間設計和裝飾。
功能分區
根據主題和各年齡段孩子游玩需求,融入教育理念和課程體系,將空間劃分為不同的功能區域。
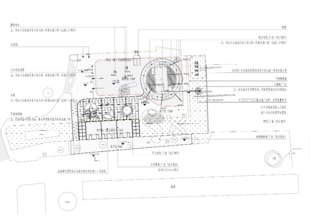
設備選擇
根據小中大班兒童成長特點,設置合適的游樂設備,滿足小朋友2小時的戶外游玩需求。
家具配置
設計符合兒童人體工學的家具,采用環保安全材料,邊緣圓滑處理,確保無尖銳棱角。
方案設計階段
風格定位
依據辦園理念提取核心設計元素(造型、色彩、特色區域),從LOGO中提取品牌視覺元素(造型、色彩)。
設備設計
明確設備功能定位,將功能需求轉化為具體造型設計。
設備細節
對游戲設施和室內家具進行細節設計,包括造型、尺寸、材質、顏色等。
工程設計階段
施工圖設計
確認效果圖后,完成項目施工圖設計,包括平面布置、地面鋪裝圖、天花布置圖、立面索引圖等。
圖紙審核
對施工圖進行審核,確保圖紙的準確性和可操作性。
施工現場交底
確認施工圖紙后,進行施工圖、物料表交付,與相關工種進行技術交底。
設備生產
安全環保
選用安全環保的材料,例如高強度鋼材、環保塑料等,確保設備的安全性和環保性。
耐用防腐
選擇耐腐蝕、耐磨損的材料,延長設備的使用壽命,降低維護成本。
美觀舒適
根據設備的設計主題和使用場景,選擇觸感舒適的材料,提升設備的美觀度和游客的舒適體驗。
精密加工
采用先進的加工設備和工藝,確保設備的精度和質量。
嚴格質檢
建立完善的質量管理體系,對原材料、零部件、成品進行嚴格的質量檢測。
安全測試
對設備進行嚴格的安全測試,例如載荷測試、疲勞測試等,確保設備的安全性能。
項目安裝工程
游樂設備安裝
根據工程設計的安裝圖紙和技術要求,進行游樂設備的安裝和調試。
水電安裝
安裝游樂園內的給排水系統、供電系統、照明系統等,滿足游樂園的用水用電需求。
現場服務
配合施工單位進行現場施工,解決施工過程中出現的問題。
竣工驗收
參與工程竣工驗收,確保工程質量符合設計要求。
后期服務階段
Late service phase
售后服務
全方位售后服務保障,隨時隨地提供專業的技術咨詢及優質高效的售后服務。
運營指導
為幼兒園提供運營管理指導,包括課程策劃、家長溝通策略、品牌建設等。
技術支持
提供詳細的產品說明書、使用手冊等資料,并對教職工進行設備使用培訓。
安全支持
委派專業員工到現場協助各項開園的準備工作,為順利開園保駕護航。